< Return To Retail Portfolio

New York, NY

Times Square Theater Adaptive Reuse

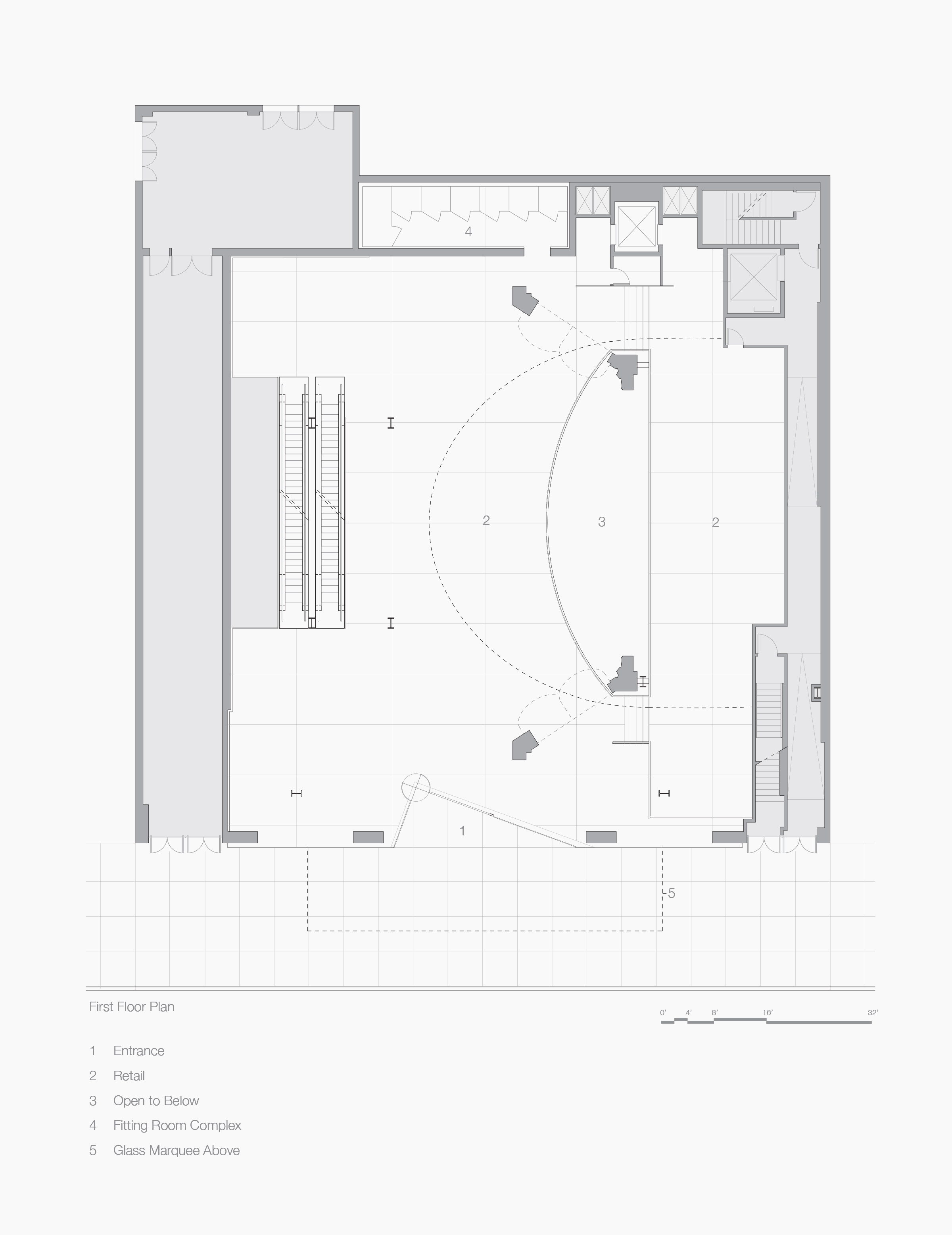
The streetwear label Ecko Unltd commissioned an extensive feasibility study to redevelop Manhattan’s historic Times Square Theater, the only Broadway playhouse not yet repurposed by The New 42nd Street, an organization overseen by New York’s Empire State Development authority. The study examines the adaptive reuse of the theater, considering its conversion into a flagship retail space and what ecko calls an “urban youth epicenter.” The proposal’s most compelling feature is its reinterpretation of the marquees that once lined the street: To preserve the landmarked limestone façade and simultaneously advertise the building’s new use, an occupiable glass box was designed to project through the building’s colonnade and over the sidewalk. Inside the building, the auditorium becomes a grand, multi-level retail space delicately woven into the preserved historic structure and soaring proscenium.

Project Date: 2005
JOIN OUR MAILING LIST